Alderfield, Penwortham, Preston
Property Summary
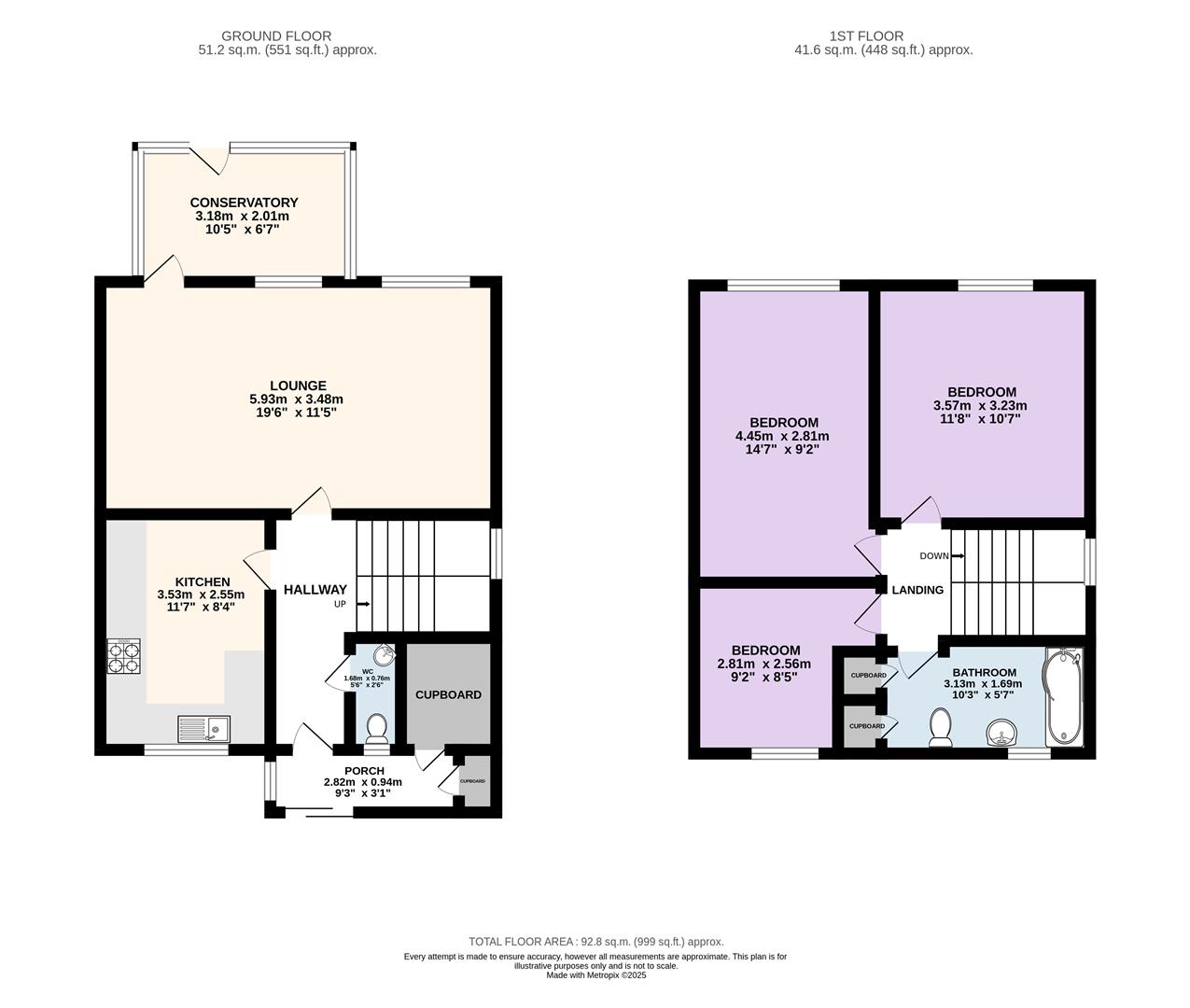
Step inside to discover a bright and spacious lounge/diner, perfect for everyday living or entertaining guests. The layout flows nicely, with plenty of natural light and room to make it your own. Just off the hallway, there’s a handy downstairs WC, a great bonus for busy households.
Upstairs, you'll find three well-proportioned bedrooms offering flexible living space, whether you need extra room for children, guests, or a home office. The home also includes a practical family bathroom.
Outside, the generous rear garden provides a private outdoor retreat ideal for those who enjoy time outdoors, gardening, or simply relaxing. The property is FREEHOLD and falls within Council Tax Band B, helping to keep ongoing costs manageable. Awaiting EPC.
Located in a popular residential area, you’re just moments from local amenities, good schools, public transport routes, and motorway links making everyday life and commuting easy and convenient.
*Please note measurements for this property are located within the floorplan*.
Full Details
Disclaimer
All information such as plans, dimensions, and details about the property's condition or suitability is provided in good faith and believed to be accurate, but should not be relied upon without independent verification. Buyers or tenants must carry out their own checks. Appliances and systems (e.g. electrics, plumbing, heating) haven’t been tested. It’s strongly advised to get professional inspections before making any commitments. No employee or agent of Holdens Estate Agents is authorised to make promises or guarantees about the property. These details are for general guidance only and do not form part of any contract. If the property is leasehold, buyers should carefully review the lease terms, including length, rent, deposit, and any specific conditions. All discussions with Holdens Estate Agents are subject to contract.























