Moss Side Industrial Estate, Marathon Place Moss Side Industrial Estate, PR26
Full Details
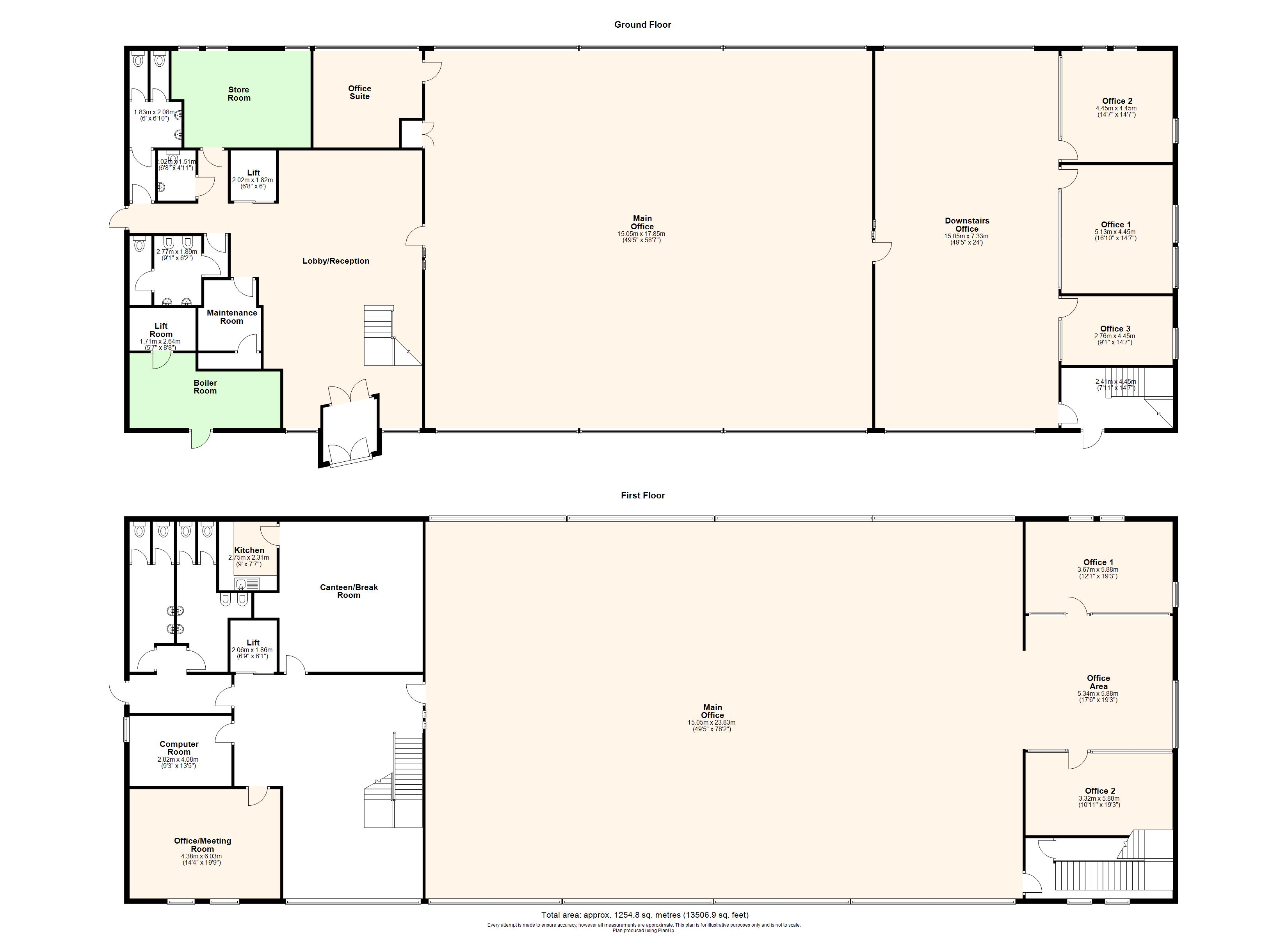
Holdens bring to the market this purpose built building TO LET offering fantastic office space over two floors (can be split). Spacious rooms plus individual office rooms, reception area. To the first floor there is a further spacious open plan main office, individual offices canteen, kitchenette, WC's, Server room. Cat five wiring, air conditioning, double glazed, heating. Lift to first floor. 49 car parking spaces on the private car park. Rental figure is subject to VAT. EPC Rating D.
GROUND FLOOR
Reception Area
Aluminium double glazed windows and doors to front, tiled floor, radiators, downlights, stairs to first floor, access into downstairs main office, ladies and gents WC, storage area, and maintenance/storage room.
Storage Area
Double glazed aluminium windows two sides, heating radiators.
Main office
Built-in storage, aluminium double glazed windows to each side, heating radiator, floor sockets with cat five wiring, door into office suite and rear office.
Office Suite
Double glazed aluminium windows to side, heating radiators.
Rear downstairs office
Double glazed aluminium windows to other side, heating radiators, socket floors with cat wiring, storage cupboards, rear stairway, three separate offices.
Office 1
Double glazed aluminium windows, heating radiator.
Office 2
Double glazed aluminium windows, heating radiator.
Office 3
Double glazed aluminium window, heating radiator.
FIRST FLOOR
Landing
Access into upstairs main office, canteen, computer room, office room, and upstairs WC.
Office/Meeting Room
Double glaze aluminium windows, heating radiator, floor sockets, downlights, left.
Computer Room/Server Room
Double glazed aluminium window to side, wiring five cabling, air-conditioning units, LED downlights.
WC - Ladies & Gents
Canteen
Aluminium double glazed windows, top floor, two heating radiators door into kitchenette.
Kitchenette
Base units, stainless steel sink with drainer, towel floor.
Main Office
Aluminium double glazed windows on two sides, heating radiators, power sockets in floor with cat five wiring, air-conditioning units, open through to rear office area, access into rear stairway.
Rear Office Area
Aluminium double glazed windows, heating radiator, power sockets in floor with five wiring, access into two offices.
Office 1
Double glazed aluminium windows, heating radiator.
Office 2
Double glazed aluminium window, heating radiator.
Boiler Room
EXTERNALLY
Car park with ample parking spaces.
Disclaimer
Disclaimer: All information such as plans, dimensions, and details about the property's condition or suitability is provided in good faith and believed to be accurate, but should not be relied upon without independent verification. Buyers or tenants must carry out their own checks. Appliances and systems (e.g. electrics, plumbing, heating) haven’t been tested. It’s strongly advised to get professional inspections before making any commitments. No employee or agent of Holdens Estate Agents is authorised to make promises or guarantees about the property. These details are for general guidance only and do not form part of any contract. If the property is leasehold, buyers should carefully review the lease terms, including length, rent, deposit, and any specific conditions. All discussions with Holdens Estate Agents are subject to contract.




























