Preston Road, Alston, PR3
Property Summary
Full Details
Tucked away off Preston Road is this stunning detached barn conversion which offers an exceptional opportunity for family living. With a generous layout, the property boasts three spacious reception rooms, providing ample space for relaxation and entertainment. The five well-appointed bedrooms ensure that there is plenty of room for family and guests alike, while the five bathrooms add a touch of luxury and convenience to daily life.
This barn conversion has been meticulously maintained and is presented to a high standard, showcasing a blend of traditional charm and modern comfort. The heart of the home is the inviting kitchen, perfect for culinary enthusiasts and family gatherings.
Set within a third of an acre, the property benefits from a delightful outdoor space, ideal for children to play or for hosting summer barbecues. The expansive grounds offer a sense of privacy and tranquillity, making it a perfect retreat from the hustle and bustle of everyday life.
This remarkable property is not just a home; it is a lifestyle choice, offering spacious family accommodation in a picturesque setting. Whether you are looking to entertain or simply enjoy the comforts of a well-designed home, this barn conversion is sure to impress. Do not miss the chance to make this exquisite property your own.
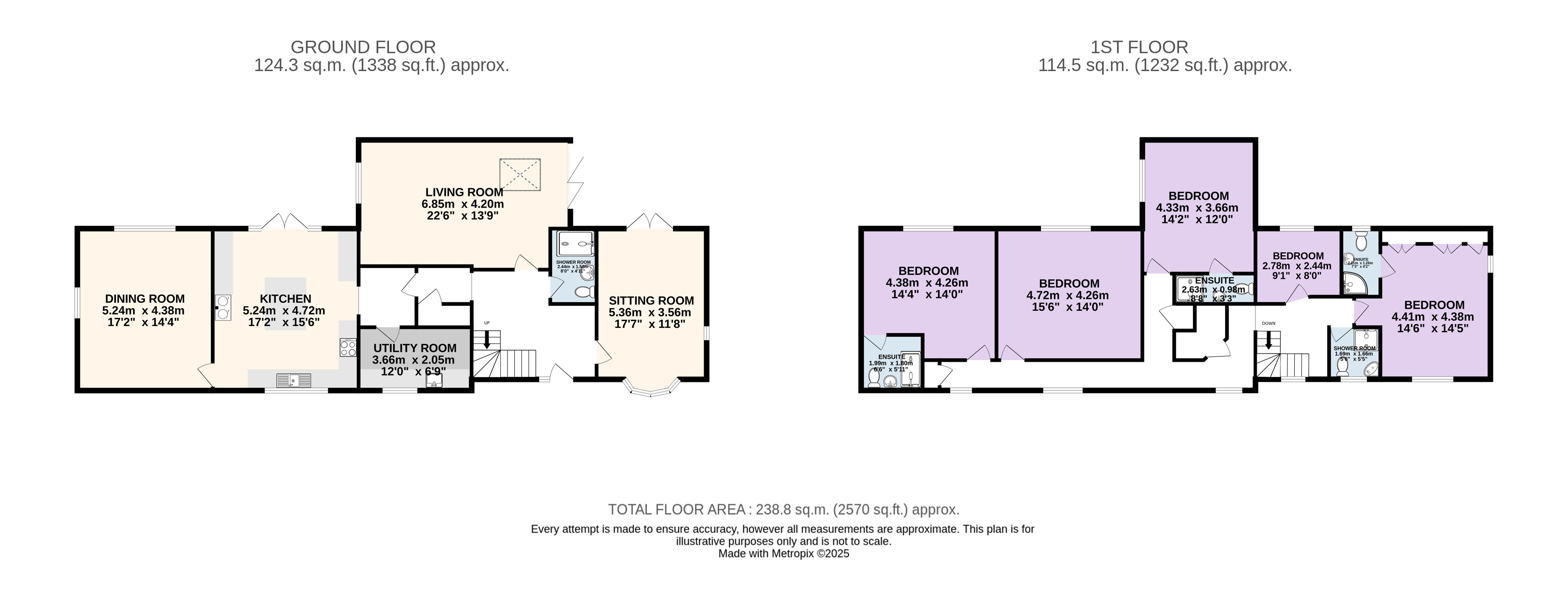
GROUND FLOOR
Entrance Hallway
Sitting Room 16' 1" x 11' 8" (4.90m x 3.56m)
Shower Room 7' 10" x 4' 11" (2.40m x 1.50m)
Living Room 21' 7" x 13' 11" (6.57m x 4.25m)
Kitchen 16' 11" x 15' 6" (5.15m x 4.72m)
Utility 12' 0" x 6' 8" (3.65m x 2.04m)
Dining Room 17' 2" x 14' 4" (5.23m x 4.38m)
FIRST FLOOR
Landing & Further Hallway
Bedroom 15' 11" x 11' 9" (4.85m x 3.57m)
En-Suite 7' 0" x 4' 2" (2.14m x 1.26m)
Shower Room 5' 5" x 5' 5" (1.65m x 1.64m)
Office 9' 1" x 7' 2" (2.76m x 2.19m)
Bedroom 14' 2" x 12' 1" (4.33m x 3.68m)
En Suite 8' 7" x 3' 3" (2.62m x 0.98m)
Bedroom 15' 6" x 13' 9" (4.73m x 4.19m)
Bedroom 13' 9" x 13' 6" (4.20m x 4.12m)
En-Suite 6' 6" x 5' 11" (1.99m x 1.80m)
Disclaimer
Disclaimer: All information such as plans, dimensions, and details about the property's condition or suitability is provided in good faith and believed to be accurate, but should not be relied upon without independent verification. Buyers or tenants must carry out their own checks. Appliances and systems (e.g. electrics, plumbing, heating) haven’t been tested. It’s strongly advised to get professional inspections before making any commitments. No employee or agent of Holdens Estate Agents is authorised to make promises or guarantees about the property. These details are for general guidance only and do not form part of any contract. If the property is leasehold, buyers should carefully review the lease terms, including length, rent, deposit, and any specific conditions. All discussions with Holdens Estate Agents are subject to contract.
